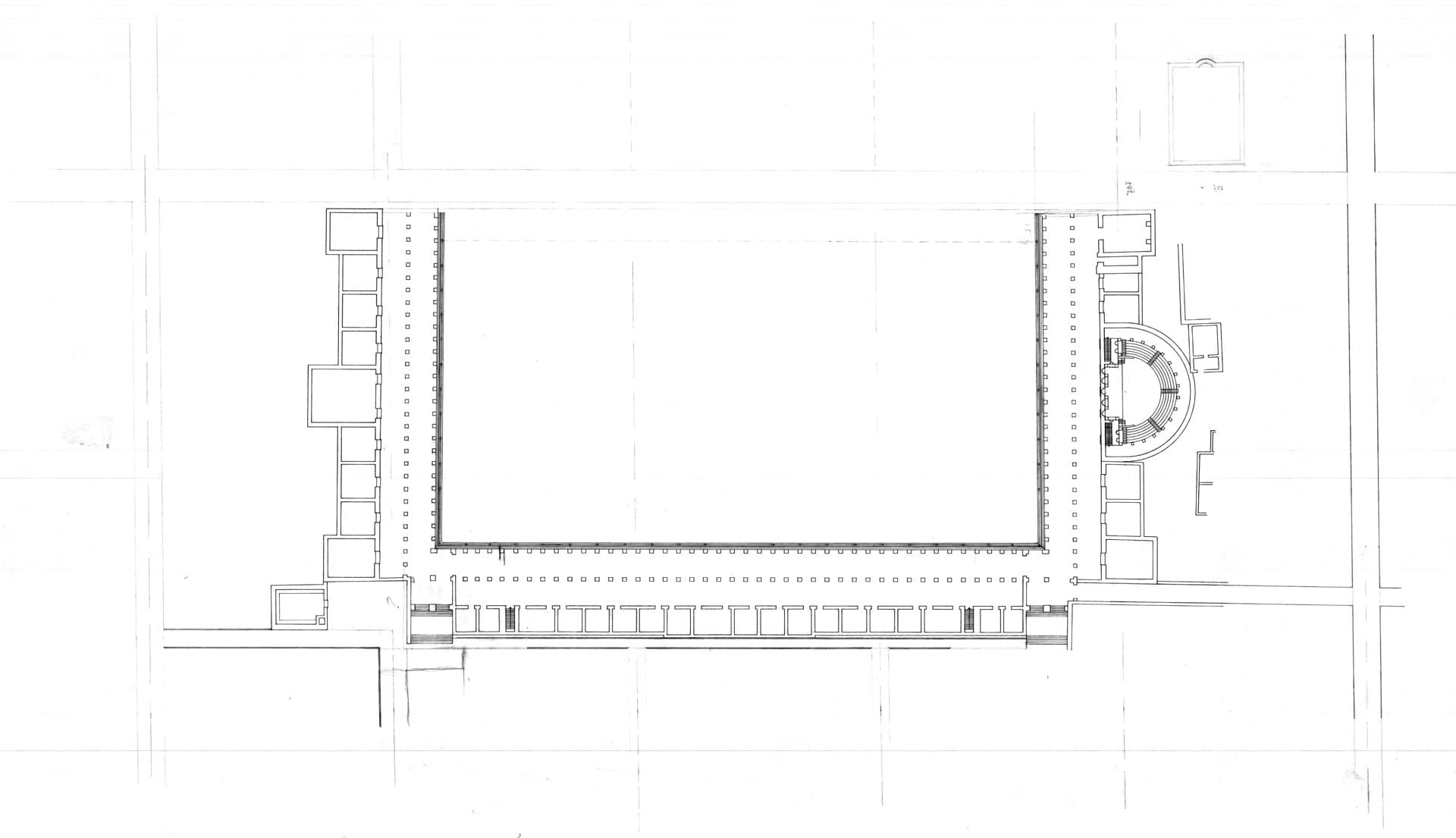
Η Ρωμαϊκή Αγορά ιδρύθηκε τον 2ο μ.Χ. αιώνα και υπήρξε το διοικητικό, οικονομικό και κοινωνικό κέντρο της πόλης. Εκεί βρίσκονταν το νομισματοκοπείο, το ωδείο και το αρχείο της πόλης. Ήταν οργανωμένη γύρω από μια πλακοστρωμένη πλατεία, στις τρεις πλευρές της οποίας υπήρχαν διπλές στοές, με κίονες και ψηφιδωτά δάπεδα. Στο νότιο τμήμα βρισκόταν η Κρυπτή Στοά, εμπορικά καταστήματα και ένας δρόμος.






Quiz
Περισσότερα…
Στη θέση που βρίσκεται η Ρωμαϊκή Αγορά προορίζονταν να ανεγερθεί το δικαστικό μέγαρο της πόλης; Το σχέδιο αυτό όμως εγκαταλείφτηκε μετά την αποκάλυψη του μνημειακού συγκροτήματος.

Facts
- Στην Αγορά υπάρχουν τα ερείπια ενός βαλανείου (αρχαίου λουτρού) που είναι ένα από τα παλαιότερα σωζόμενα δημόσια κτίρια της ελληνιστικής περιόδου!
- Στο υπόγειο της Ρωμαϊκής Αγοράς υπάρχει μουσείο!

